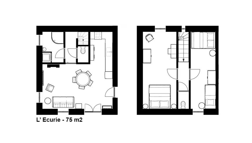
Via dubbele deuren kom je binnen in de voormalige paardenstal, waar authentieke charme en modern comfort samenkomen. De woonkamer is gezellig ingericht met een comfortabele bank, een fauteuil en een pelletkachel die warmte en sfeer biedt. Ramen zorgen voor veel natuurlijk licht en bieden een prachtig uitzicht op de oprijlaan en de omliggende weilanden. Voor vermaak zijn er een TV, Bluetooth-speaker en een radio aanwezig.
De open keuken is volledig uitgerust met een inductiekookplaat, oven, vaatwasser, ruime koelkast met vriezer en handige apparaten zoals een Nespresso-apparaat, melkopschuimer, broodrooster en staafmixer. Kruiden, olijfolie, peper en zout staan al klaar. Naast de keuken bevindt zich de eethoek, een fijne plek om samen van maaltijden te genieten.
Op de begane grond is ook een ruime badkamer met een stortdouche, wastafel en een wasmachine/droger. En een apart toilet. Badhanddoeken, shampoo, conditioner en een föhn liggen voor je klaar.
De eerste verdieping beschikt over twee ruime slaapkamers. De eerste heeft een kingsize bed (180×200) en biedt voldoende ruimte voor een babybedje. De tweede kamer is voorzien van een tweepersoonsbed (140×200) en een eenpersoonsbed (90×200). Beide kamers zijn uitgerust met comfortabele matrassen en een kledingkast met kluisje. Op deze verdieping is tevens een tweede toilet aanwezig.
Via een afgesloten doorgang kan L’Écurie worden verbonden met La Sellerie, wat dit verblijf ideaal maakt voor grotere gezinnen of groepen die samen op vakantie willen, maar ook hun eigen privacy willen behouden.
Deze accommodatie is slecht toegankelijk voor mindervaliden.
Helaas zijn huisdieren niet toegestaan.
L’Écurie ligt direct naast de ingang van het landgoed, op een rustige hoeklocatie. Het privéterras ligt op het noorden, wat zorgt voor een koele en aangename plek om te ontspannen tijdens warme zomerdagen. Dankzij de hoekligging kun je in de ochtend genieten van de zon terwijl je rustig ontbijt.
Vanaf het terras kijk je uit op de landelijke oprijlaan en de omliggende weilanden waar de Charolais-koeien grazen. Het terras is voorzien van comfortabel meubilair, een parasol en een barbecue, ideaal om te ontspannen en te genieten van de landelijke omgeving.
Deze gîte is volledig ingericht om je verblijf zo comfortabel mogelijk te maken. Hieronder vind je een overzicht van alle voorzieningen die beschikbaar zijn, van moderne keukentoestellen tot ontspannende extra’s. Ontdek alles wat deze accommodatie te bieden heeft!
Woonruimte
- Comfortabele zithoek
- Eettafel met stoelen
- Televisie
- Radio / CD speler
- Streamingdiensten
- Bluetooth-speaker
- Boeken, bordspellen of puzzels
- Palletkachel
- Elektrische verwarming
Slaapkamers
- Comfortabele bedden
- Extra dikke matrassen
- Bedlinnen inbegrepen
- Nachtkastjes met lampjes
- Kledingkast
- Klein bureau
- Ventilator
- Kluisje voor waardevolle spullen
- Ruimte voor een babybedje
Badkamer
- Douche
- Apart toilet
- Handdoeken inbegrepen
- Handdoekenrek
- Haardroger
- Badproducten
- Spiegel
Keuken
- Inductiekookplaat
- Oven
- Magnetron
- Vaatwasser
- Koelkast met vriesvak
- Nespresso-apparaat of koffiezetapparaat
- Waterkoker
- Broodrooster
- Mixer, staafmixer en sinaasappelpers
- Basisbenodigdheden zoals peper, zout, kruiden en olijfolie
- Volledig keukengerei (pannen, messen, lepels, spatels, etc.)
- Servies en bestek
Buitenruimte
- Privéterras met comfortabel meubilair
- Parasol
- Barbecue
Voor kinderen
- Babybedje (op aanvraag)
- Babystoeltje (op aanvraag)
- Speelhoek of speelgoed (op aanvraag)
- Kinderbestek en -borden (op aanvraag)
Extra’s
- Gebruik van zwembad
- Gratis parkeerplaats
- Laadpaal
- Goede WIFI
- Wasmachine en droger faciliteiten
- Strijkijzer en strijkplank
- Informatie over wandel- en fietsroutes
- Ontbijtservice of broodjesservice (optioneel)
- Welkomstpakket met koffie, thee of lokale specialiteiten
Plan je volgende verblijf in L’Écurie eenvoudig met de beschikbaarheidskalender hieronder. Hier vind je de actuele reserveringsmogelijkheden voor deze gîte.
Laden in uitvoering …
Beleef alvast de sfeer van deze gîte met de foto’s hieronder. Van het warme interieur tot de prachtige buitenruimte, deze beelden geven je een voorproefje van wat je kunt verwachten tijdens jouw verblijf.
Krijg een duidelijk beeld van de indeling van deze gîte met de plattegrond hieronder. Van de comfortabele slaapkamers tot de gezellige woonkamer en goed uitgeruste keuken